
Projekt do 70 m2
Dom modułowy DH70-2
Ten elegancki i funkcjonalny dom o powierzchni 70m² charakteryzuje się praktycznymi rozwiązaniami architektonicznymi. Jego imponująca zewnętrzna dwuspadowa konstrukcja z dużymi oknami nie tylko zapewnia obfite światło wewnątrz, ale również umożliwia mieszkańcom cieszenie się widokami bez opuszczania domu. Drewniane akcenty na fasadzie dodają ciepła i naturalności, tworząc harmonijną całość z otoczeniem.
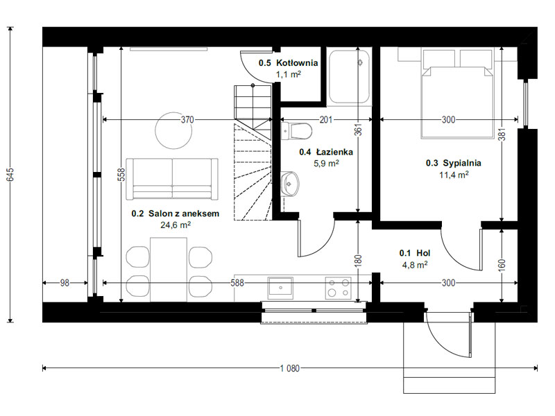
Wnętrze cechuje się otwartym planem, który sprzyja spędzaniu czasu w gronie rodziny i gości, z wyraźnie zaznaczonymi strefami wypoczynku i jadalni. Kuchnia, zaprojektowana z naciskiem na wygodę i ergonomię, oferuje dużo miejsca do przechowywania i przygotowywania posiłków. Na parterze znajduje się również funkcjonalna łazienka z prysznicem, zaprojektowana z dbałością o każdy detal.
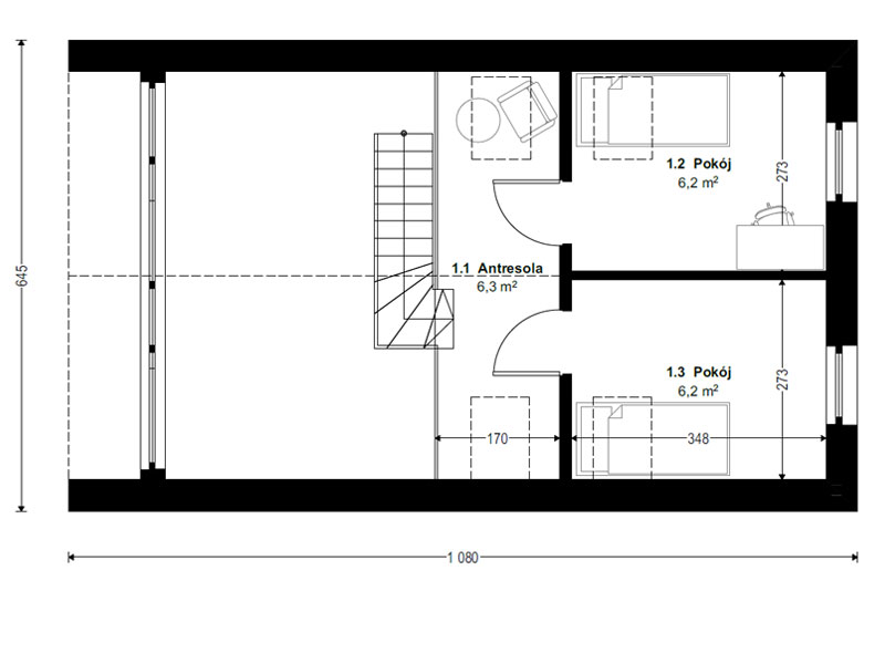
Sypialnie na piętrze to oaza spokoju, zapewniająca prywatność i miejsce do odpoczynku. Wysokość pomieszczeń oraz przemyślane rozmieszczenie okien daje poczucie przestronności i bliskości natury. Ten projekt jest idealnym rozwiązaniem dla osób ceniących sobie połączenie nowoczesności z naturą, oferując przy tym wysoki standard wykończenia i dbałość o każdy, nawet najmniejszy szczegół.
Specyfikacja:
Długość: 10,80 m
Szerokość: 6,45 m
Powierzchnia użytkowa: 66,43 m²
Powierzchnia zabudowy: 69,66 m²
Wysokość: 7,39 m
Powierzchnia netto (podłogi): 76,27 m²
Konstrukcja:
Ściany
- Płyta Fermacell 12,5mm / płyta G-K 12,5mm / boazeria
- Ruszt instalacyjny 40x60mm ocieplony wełną skalną Rockwool 50mm
- Folia paroizolacyjna
- Konstrukcja 45x145mm, ocieplenie wełną skalną Rockwool 140(145)mm
- Płyta Fermacell 12,5mm
- Wełna fasadowa 100mm/ 150mm
- Membrana fasadowa wiatroizolacyjna
- Elewacja lamelkowa / blacha na rąbek / boazeria / tynk

Podłoga
- Zagęszczone kruszywo bazaltowe
- Zagęszczony piasek
- Polistyren ekstrudowany XPS 2x50mm
- Płyta żelbetowa 200mm
- Hydroizolacja podwaliny
- Pozioma izolacja z folii PE
- Płyty styropianowe 150mm
- Folia pod ogrzewanie podłogowe
- Wylewka, ogrzewanie podłogowe (ok. 70mm)
- Panele podłogowe

Dach
- Płyta Fermacell 12,5mm / płyta G-K 12,5mm / boazeria
- Ruszt instalacyjny 40x60mm ocieplony wełną skalną Rockwool 50mm
- Folia paroizolacyjna
- Krokwie 40x195mm, ocieplenie wełną skalną Rockwool 180mm
- Membrana dachowa
- Łaty i kontrłaty impregnowane
- Pokrycie dachowe blacha na rąbek/dachówka

Opcje wykończenia
Realizacja w różnych opcjach wykończenia
Dostosuj swój dom do własnych potrzeb
Projekt budowlany
Standardowy projekt budowlany bez adaptacji
Zmiany w projekcie
Konstrukcja
Pokrycie dachu z rynnami
Elewacja lamel - Impregnowana ciśnieniowo w kolorze brązowym
Parapety zewnętrzne
Stolarka okienna i drzwiowa
Okna dachowe
Instalacja elektryczna
Instalacja wodno kanalizacyjna
Instalacja C.O.
Klimatyzacja
Wentylacja – naturalna – grawitacyjna
Rekuperacja
System rekuperacji we wszystkich pomieszczeniach
Komin
Komin systemowy wraz z obróbką z blachy ponad dachem
Płyta kartonowo gipsowa / Fermacell (położenie bez malowania i szpachlowania) na powierzchni całego domu
Posadzki
Termoizolacja
Wełna skalna prasowana U=0,035 W/m²*K
Wełna fasadowa U=0,035 W/m²*K
Dodatkowa Termoizolacja
Wełna fasadowa rockwool U=0,035 W/m²*K.
Schody
Montaż
BASIC
479 600,00
zł/NETTO
Blacha
Stalowe
Płyta G-K
U=0,16
(24cm)
COMFORT
563 300,00
zł/NETTO
Blacha
Stalowe
Fermacell
U=0,14
(29cm)
PREMIUM
575 700,00
zł/NETTO
Dachówka
Granitowe
Fermacell
U=0,12
(34cm)
Dostarczamy nasze domy w promieniu do 100 km bez dodatkowych opłat. Jeśli jesteś poza tym zasięgiem, dostosujemy cenę dostawy do Twojej lokalizacji. Montaż oraz zmiany w projekcie wymagają konsultacji, napisz do nas, przygotujemy dla Ciebie spersonalizowaną wycenę. Nasza oferta jest elastyczna, dostosowana do Twoich potrzeb!
Skontaktuj się
z nami!
Masz pytania odnośnie naszych projektów? Dalej masz wątpliwości?
Zadzwoń albo napisz do nas maila!
+48 501 063 489
+48 451 666 138
+48 605 146 011
domihaus@domihaus.com
