
Projekt CUBE
Dom modułowy CUBE28
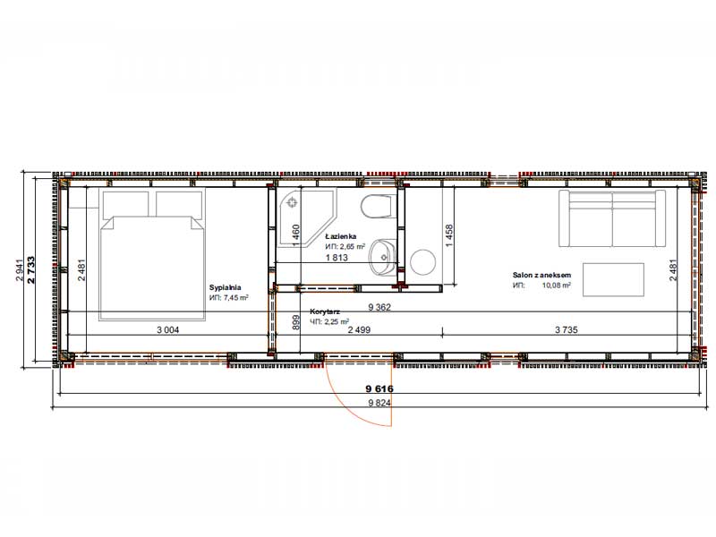
Domy modułowe CUBE wyróżniają się kilkoma kluczowymi zaletami: szybkość wykonania projektu, przystępne koszty budowy oraz elastyczność w dostosowaniu do unikalnych potrzeb każdego Klienta. Co więcej, nie wymagają one uzyskania pozwolenia na budowę, a ich uniwersalność pozwala na wykorzystanie jako domów całorocznych. Model CUBE28, z użytkową powierzchnią 22,43 m², jest idealnym rozwiązaniem dla tych, którzy szukają kompaktowego domu, łatwego do umieszczenia nawet na mniejszej działce. Montaż tej struktury zajmuje zaledwie 2 dni.
Klient ma możliwość wyboru między stolarką okienną PCV a aluminiową, dostosowując kolorystykę okien oraz rodzaj pokrycia dachowego do własnych preferencji. Model CUBE28 oferuje szerokie możliwości aranżacji wnętrza. Te wszechstronne konstrukcje doskonale sprawdzą się jako biuro, domek letniskowy, gabinet, mały sklep lub dom gościnny na wynajem w regionach turystycznych.
Specyfikacja:
Długość – 9,82 m
Szerokość – 2,94 m
Powierzchnia użytkowa: 22,43 m2
Powierzchnia zabudowy: 28,28 m2
Wysokość – 2,70 m
Czas realizacji – 2 dni
Konstrukcja:
Ściany
- Szkielet z deski klejonej o przekroju 40x100mm
- Ocieplenie z niepalnej wełny skalnej ROCKWOOL
- Poszycie z płyty OSB3 o grubości 15mm
- Membrana wiatroizolacyjna
- Łaty impregnowane 16×70 pod elewację

Podłoga
- Płyta OSB3 o grubości 15mm
- Szkielet z desek klejonych 40x100mm (lub 145mm), impregnowanych
- Ocieplenie z niepalnej wełny skalnej ROCKWOOL
- Membrana wiatroizolacyjna
- Legary impregnowane 29x59mm
- Blacha ocynkowana

Dach
- Tworzywo EPDM na kleju
- Płyta OSB3 o grubości 15mm zagruntowana gruntem bitumicznym
- Szkielet z deski litej 45x145mm
- Ocieplenie z niepalnej wełny skalnej ROCKWOOL
- Membrana paroizolacyjna

Opcje wykończenia
Realizacja w różnych opcjach wykończenia
Dostosuj swój dom do własnych potrzeb
Konstrukcja
Ocieplenie ścian
Ocieplenie dachu
Pokrycie dachu
Rynna
Drzwi i okna
Opierzenia, obróbki blacharskie
Instalacja wodno kanalizacyjna
Instalacja elektryczna
Szafa elektryczna
Klimatyzator
Oświetlenie wewnątrz
Oświetlenie na zewnątrz
Gniazdka
Wykończenie łazienki
Panele podłogowe we wszystkich pomieszczeniach
Dodatkowe ocieplenie podłogi xps
Rama transportowa dodatkowo ocieplona i zabezpieczona przed szkodnikami
Drzwi wewnętrzne
Wykończenie kuchni
Ogrzewanie podłogowe
Przepływowy ogrzewacz wody
Lodówka
Płyta indukcyjna w kuchni
Impregnacja elewacji
Meble
Taras
BASIC
155 599,00
zł/NETTO
panel pcv, paroizolacja, konstrukcja ocieplenie 100mm, OSB, membrana, elewacja panele pcv
100 mm wełna skalna rockwool
150 mm wełna skalna rockwool
papa
plastikowa
pcv 2 szybowe (drzwi balkonowe)
toaleta, prysznic, umywalka, lustro, wentylator
2 m x 9,82 m
COMFORT
171 999,00
zł/NETTO
boazeria lub regips, paroizolacja, konstrukcja z ociepleniem, OSB3, membrana, elewacja z deski
100 mm wełna skalna rockwool
150 mm wełna skalna rockwool
epdm
metalowa
pcv 2 szybowe (okno przesuwne PSK)
toaleta, prysznic, umywalka, lustro, wentylator
Blat, szafki, zlew
2 m x 9,82 m
PREMIUM
230 999,00
zł/NETTO
boazeria lub regips, paroizolacja, konstrukcja z ociepleniem, OSB3, membrana, elewacja z lamelki
100 mm wełna skalna rockwool
150 mm wełna skalna rockwool
epdm
metalowa
pcv 2 szybowe (okno przesuwne PSK)
toaleta, prysznic, umywalka, lustro, wentylator, kafelki na podłodze i ścianach
Blat, szafki, zlew
salon: kanapa, stolik, szafka pod tv
sypialnia: łóżko, szafa
2 m x 9,82 m
Dostarczamy nasze domy w promieniu do 100 km bez dodatkowych opłat. Jeśli jesteś poza tym zasięgiem, dostosujemy cenę dostawy do Twojej lokalizacji. Montaż oraz zmiany w projekcie wymagają konsultacji, napisz do nas, przygotujemy dla Ciebie spersonalizowaną wycenę. Nasza oferta jest elastyczna, dostosowana do Twoich potrzeb!
Skontaktuj się
z nami!
Masz pytania odnośnie naszych projektów? Dalej masz wątpliwości?
Zadzwoń albo napisz do nas maila!
+48 501 063 489
+48 451 666 138
+48 605 146 011
domihaus@domihaus.com
