
Projekt do 35 m2
Dom modułowy DH35-3
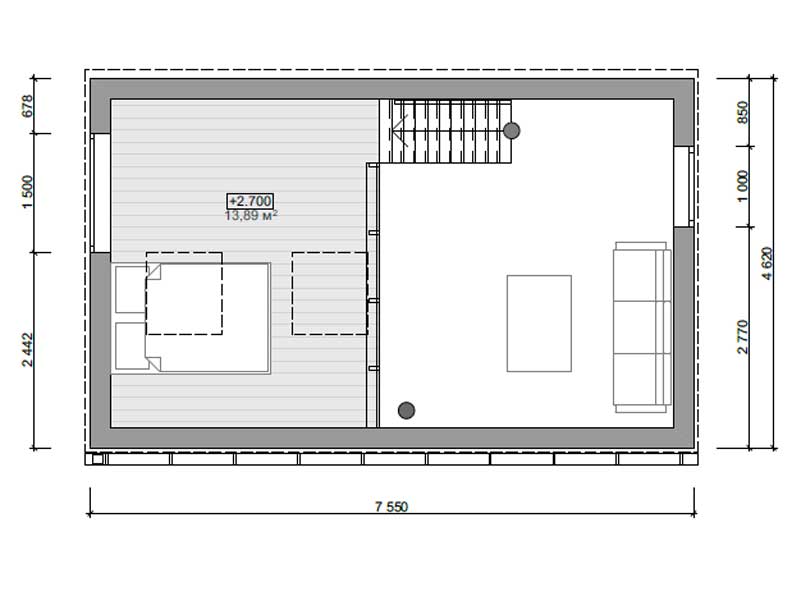
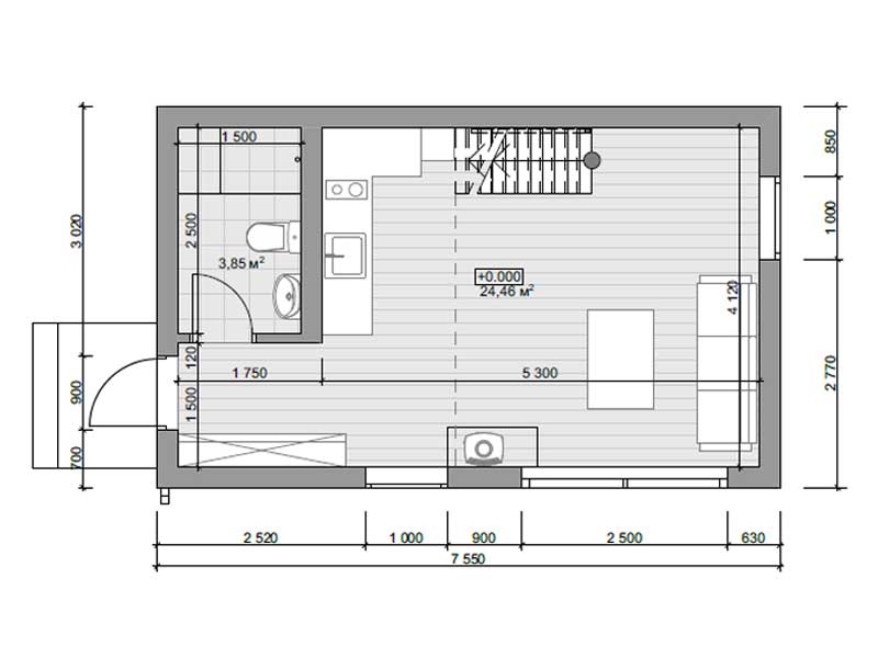
Zaprojektowany z myślą o efektywnym wykorzystaniu miejsca, ten 35m² nowoczesny dom modułowy łączy w sobie przemyślane rozwiązania w kompaktowym rozmiarze. Posiada strefę dzienną z aneksem kuchennym, wygodną sypialnię oraz praktyczną łazienkę. Jego wnętrze jest doświetlone przez duże okna, które dodatkowo nadają elegancji zewnętrznej bryle.
Dzięki konstrukcji modułowej, montaż tego domku na działce odbywa się szybko i bez konieczności długich prac budowlanych. nowoczesne materiały izolacyjne zapewniają efektywność energetyczną i niższe koszty eksploatacji. Projekt uwzględnia integrację z otoczeniem, co umożliwia jego lokalizację w różnych środowiskach, od podmiejskich po tereny rekreacyjne.
Ten wielofunkcyjny dom modułowy łączy domowe ciepło z praktycznością, będąc idealnym wyborem zarówno na weekendowe wypady poza miasto, jak i do życia na co dzień w mniejszej przestrzeni. Jego funkcjonalność, komfort i ekonomiczność sprawiają, że jest to inwestycja odpowiadająca na różnorodne potrzeby i style życia.
Specyfikacja:
Długość: 7,55 m
Szerokość: 4,62 m
Powierzchnia użytkowa: 32,87 m²
Powierzchnia zabudowy: 34,88 m²
Wysokość: 6,08 m
Powierzchnia netto (podłogi): 42,10 m²
Konstrukcja:
Ściany
- Płyta Fermacell 12,5mm / płyta G-K 12,5mm / boazeria
- Ruszt instalacyjny 40x60mm ocieplony wełną skalną Rockwool 50mm
- Folia paroizolacyjna
- Kontrukcja 45x145mm, ocieplenie wełną skalną Rockwool 140(145)mm
- Płyta Fermacell 12,5mm
- Wełna fasadowa 100mm/ 150mm
- Membrana fasadowa wiatroizolacyjna
- Elewacja lamelkowa / blacha na rąbek / tynk

Podłoga
- Zagęszczone kruszywo bazaltowe
- Zagęszczony piasek
- Polistyren ekstrudowany XPS 2x50mm
- Płyta żelbetowa 200mm
- Hydroizolacja podwaliny
- Pozioma izolacja z folii PE
- Płyty styropianowe 150mm
- Folia pod ogrzewanie podłogowe
- Wylewka, ogrzewanie podłogowe (ok. 70mm)
- Panele podłogowe

Dach
- Płyta Fermacell 12,5mm / płyta G-K 12,5mm / boazeria
- Ruszt 40x60mm ocieplony wełną skalną Rockwool 50mm
- Folia paroizolacyjna
- Krokwie 40x195mm, ocieplenie wełną skalną Rockwool 180mm
- Membrana dachowa
- Łaty i kontrłaty impregnowane
- Pokrycie dachowe blacha na rąbek/dachówka

Opcje wykończenia
Realizacja w różnych opcjach wykończenia
Dostosuj swój dom do własnych potrzeb
Projekt budowlany
Standardowy projekt budowlany bez adaptacji
Zmiany w projekcie
Konstrukcja
Pokrycie dachu z rynnami
Elewacja lamel - Impregnowana ciśnieniowo w kolorze brązowym
Parapety zewnętrzne
Stolarka okienna i drzwiowa
Okna dachowe
Instalacja elektryczna
Instalacja wodno kanalizacyjna
Instalacja C.O.
Klimatyzacja
Wentylacja – naturalna – grawitacyjna
Rekuperacja
System rekuperacji we wszystkich pomieszczeniach
Komin
Komin systemowy wraz z obróbką z blachy ponad dachem
Płyta kartonowo gipsowa / Fermacell (położenie bez malowania i szpachlowania) na powierzchni całego domu
Posadzki
Termoizolacja
Wełna skalna prasowana U=0,035 W/m²*K
Wełna fasadowa U=0,035 W/m²*K
Dodatkowa Termoizolacja
Wełna fasadowa rockwool U=0,035 W/m²*K.
Schody
Montaż
BASIC
243 000,00
zł/NETTO
Blacha
Stalowe
Płyta G-K
U=0,16
COMFORT
280 500,00
zł/NETTO
Blacha
Stalowe
Fermacell
U=0,14
PREMIUM
282 000,00
zł/NETTO
Dachówka
Granitowe
Fermacell
U=0,12
Dostarczamy nasze domy w promieniu do 100 km bez dodatkowych opłat. Jeśli jesteś poza tym zasięgiem, dostosujemy cenę dostawy do Twojej lokalizacji. Montaż oraz zmiany w projekcie wymagają konsultacji, napisz do nas, przygotujemy dla Ciebie spersonalizowaną wycenę. Nasza oferta jest elastyczna, dostosowana do Twoich potrzeb!
Skontaktuj się
z nami!
Masz pytania odnośnie naszych projektów? Dalej masz wątpliwości?
Zadzwoń albo napisz do nas maila!
+48 501 063 489
+48 451 666 138
+48 605 146 011
domihaus@domihaus.com
