
Projekt do 35 m2
Dom modułowy DH35-1
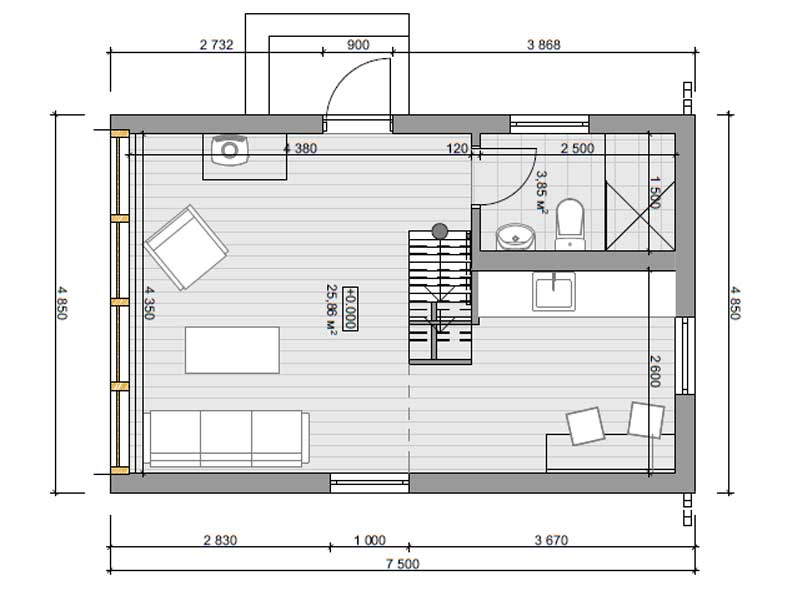
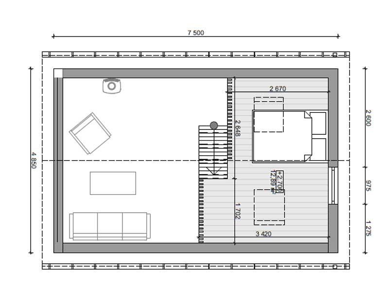
Nowoczesny dom modułowy o powierzchni 35m², zaprojektowany z myślą o maksymalnym wykorzystaniu przestrzeni i komforcie mieszkania. Jego kompaktowa bryła kryje w sobie funkcjonalne i przemyślane rozwiązania przestrzenne. Dom został wyposażony w przestronny salon połączony z kuchnią, wygodną sypialnię oraz łazienkę z pełnym węzłem sanitarnym. Duże przeszklenia zapewniają doskonałe doświetlenie wnętrza oraz estetyczny wygląd zewnętrzny.
Budowa modułowa pozwala na szybki montaż domku na działce, nie wymagając długotrwałych prac budowlanych. Wykorzystanie nowoczesnych materiałów izolacyjnych zapewnia wysoką efektywność energetyczną, co przekłada się na niższe koszty utrzymania. Dom został zaprojektowany z myślą o integracji z naturą, co pozwala na jego postawienie w różnorodnych lokalizacjach, od działek podmiejskich po odległe tereny rekreacyjne.
Bardzo ważna jest dla nas elastyczność użytkowania, ten wielofunkcyjny dom modułowy oferuje wyjątkowe połączenie domowego ciepła i praktyczności, co czyni go idealnym rozwiązaniem zarówno dla poszukujących miejsca na weekendowe ucieczki od miejskiego zgiełku, jak i dla tych, którzy pragną żyć w mniejszej przestrzeni przez cały rok. To połączenie funkcjonalności, wygody i ekonomiczności sprawia, że dom modułowy do 35m² to inwestycja, która sprosta różnorodnym potrzebom i stylom życia.
Specyfikacja:
Długość: 7,50 m
Szerokość: 4,85 m
Powierzchnia użytkowa: 32,87 m²
Powierzchnia zabudowy: 36,37 m²
Wysokość: 5,24 m
Powierzchnia netto (podłogi): 41,71 m²
Konstrukcja:
Ściany
- Płyta Fermacell 12,5mm / płyta G-K 12,5mm / boazeria
- Ruszt instalacyjny 40x60mm ocieplony wełną skalną Rockwool 50mm
- Folia paroizolacyjna
- Konstrukcja 45x145mm, ocieplenie wełną skalną Rockwool 140(145)mm
- Płyta Fermacell 12,5mm
- Wełna fasadowa 100mm/ 150mm
- Membrana fasadowa wiatroizolacyjna
- Elewacja lamelkowa / blacha na rąbek / boazeria / tynk

Podłoga
- Zagęszczone kruszywo bazaltowe
- Zagęszczony piasek
- Polistyren ekstrudowany XPS 2x50mm
- Płyta żelbetowa 200mm
- Hydroizolacja podwaliny
- Pozioma izolacja z folii PE
- Płyty styropianowe 150mm
- Folia pod ogrzewanie podłogowe
- Wylewka, ogrzewanie podłogowe (ok. 70mm)
- Panele podłogowe

Dach
- Płyta Fermacell 12,5mm / płyta G-K 12,5mm / boazeria
- Ruszt instalacyjny 40x60mm ocieplony wełną skalną Rockwool 50mm
- Folia paroizolacyjna
- Krokwie 40x195mm, ocieplenie wełną skalną Rockwool 180mm
- Membrana dachowa
- Łaty i kontrłaty impregnowane
- Pokrycie dachowe blacha na rąbek/dachówka

Opcje wykończenia
Realizacja w różnych opcjach wykończenia
Dostosuj swój dom do własnych potrzeb
Projekt budowlany
Standardowy projekt budowlany bez adaptacji
Zmiany w projekcie
Konstrukcja
Pokrycie dachu z rynnami
Elewacja tynk silikatowo - silikonowy
Parapety zewnętrzne
Stolarka okienna i drzwiowa
Okna dachowe
Instalacja elektryczna
Instalacja wodno kanalizacyjna
Instalacja C.O.
Klimatyzacja
Wentylacja – naturalna – grawitacyjna
Rekuperacja
System rekuperacji we wszystkich pomieszczeniach
Komin
Komin systemowy wraz z obróbką z blachy ponad dachem
Płyta kartonowo gipsowa / Fermacell (położenie bez malowania i szpachlowania) na powierzchni całego domu
Posadzki
Termoizolacja
Wełna skalna prasowana U=0,035 W/m²*K
Wełna fasadowa U=0,035 W/m²*K
Dodatkowa Termoizolacja
Wełna fasadowa rockwool U=0,035 W/m²*K.
Schody
Montaż
BASIC
219 000,00
zł/NETTO
Blacha
Stalowe
Płyta G-K
U=0,16
COMFORT
254 000,00
zł/NETTO
Blacha
Stalowe
Fermacell
U=0,14
PREMIUM
268 000,00
zł/NETTO
Dachówka
Granitowe
Fermacell
U=0,12
Dostarczamy nasze domy w promieniu do 100 km bez dodatkowych opłat. Jeśli jesteś poza tym zasięgiem, dostosujemy cenę dostawy do Twojej lokalizacji. Montaż oraz zmiany w projekcie wymagają konsultacji, napisz do nas, przygotujemy dla Ciebie spersonalizowaną wycenę. Nasza oferta jest elastyczna, dostosowana do Twoich potrzeb!
Skontaktuj się
z nami!
Masz pytania odnośnie naszych projektów? Dalej masz wątpliwości?
Zadzwoń albo napisz do nas maila!
+48 501 063 489
+48 451 666 138
+48 605 146 011
domihaus@domihaus.com
