
Projekt do 35 m2
Dom modułowy DH35-2
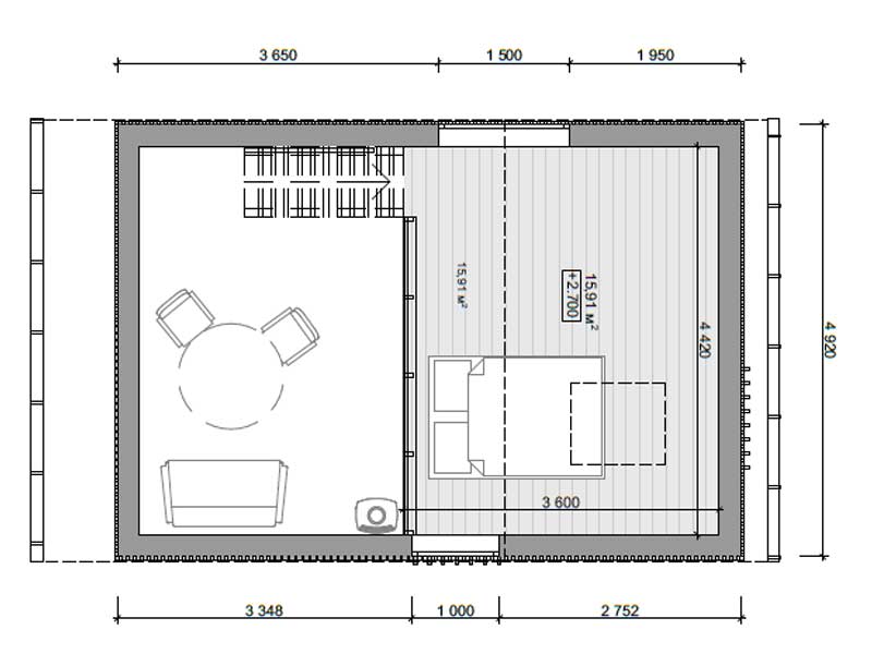
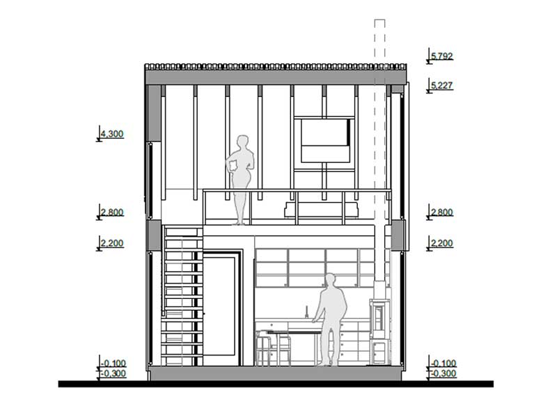
Ten nowoczesny, modułowy dom o powierzchni 35 m² został zaprojektowany z naciskiem na optymalne wykorzystanie przestrzeni i zapewnienie komfortu mieszkania. Jego kompaktowa struktura łączy w sobie funkcjonalność i inteligentne rozwiązania architektoniczne. Wnętrze domu oferuje przestronny salon z aneksem kuchennym, przytulną sypialnię oraz łazienkę. Duże okna nie tylko doskonale doświetlają pomieszczenia, ale również nadają budynkowi atrakcyjny i nowoczesny wygląd
Konstrukcja modułowa tego domu umożliwia jego szybką instalację na działce, eliminując potrzebę długotrwałych prac budowlanych. Zastosowanie innowacyjnych materiałów izolacyjnych gwarantuje wyjątkową efektywność energetyczną, co skutkuje obniżeniem kosztów eksploatacyjnych. Dom został starannie zaprojektowany, aby harmonijnie współgrać z naturą, co czyni go idealnym wyborem na różne lokalizacje, od podmiejskich obszarów po odległe tereny rekreacyjne.
Bardzo ważna jest dla nas elastyczność użytkowania, ten wielofunkcyjny dom modułowy oferuje wyjątkowe połączenie domowego ciepła i praktyczności, co czyni go idealnym rozwiązaniem zarówno dla poszukujących miejsca na weekendowe ucieczki od miejskiego zgiełku, jak i dla tych, którzy pragną żyć w mniejszej przestrzeni przez cały rok. Ten dom łączy funkcjonalność, komfort i ekonomiczność, czyniąc go inwestycją dostosowaną do różnych potrzeb i stylów życia.
Specyfikacja:
Długość: 7,10 m
Szerokość: 4,92 m
Powierzchnia użytkowa: 38,06 m²
Powierzchnia zabudowy: 34,93 m²
Wysokość: 5,79 m
Powierzchnia netto (podłogi): 44,26 m²
Konstrukcja:
Ściany
- Płyta Fermacell 12,5mm / płyta G-K 12,5mm / boazeria
- Ruszt instalacyjny 40x60mm ocieplony wełną skalną Rockwool 50mm
- Folia paroizolacyjna
- Konstrukcja 45x145mm, ocieplenie wełną skalną Rockwool 140(145)mm
- Płyta Fermacell 12,5mm
- Wełna fasadowa 100mm/ 150mm
- Membrana fasadowa wiatroizolacyjna
- Elewacja lamelkowa / blacha na rąbek /boazeria / tynk

Podłoga
- Zagęszczone kruszywo bazaltowe
- Zagęszczony piasek
- Polistyren ekstrudowany XPS 2x50mm
- Płyta żelbetowa 200mm
- Hydroizolacja podwaliny
- Pozioma izolacja z folii PE
- Płyty styropianowe 150mm
- Folia pod ogrzewanie podłogowe
- Wylewka, ogrzewanie podłogowe (ok. 70mm)
- Panele podłogowe

Dach
- Płyta Fermacell 12,5mm / płyta G-K 12,5mm / boazeria
- Ruszt instalacyjny 40x60mm ocieplony wełną skalną Rockwool 50mm
- Folia paroizolacyjna
- Krokwie 40x195mm, ocieplenie wełną skalną Rockwool 180mm
- Membrana dachowa
- Łaty i kontrłaty impregnowane
- Pokrycie dachowe blacha na rąbek/dachówka

Opcje wykończenia
Realizacja w różnych opcjach wykończenia
Dostosuj swój dom do własnych potrzeb
Projekt budowlany
Standardowy projekt budowlany bez adaptacji
Zmiany w projekcie
Konstrukcja
Pokrycie dachu z rynnami
Elewacja lamel - Impregnowana ciśnieniowo w kolorze brązowym
Parapety zewnętrzne
Stolarka okienna i drzwiowa
Okna dachowe
Instalacja elektryczna
Instalacja wodno kanalizacyjna
Instalacja C.O.
Klimatyzacja
Wentylacja – naturalna – grawitacyjna
Rekuperacja
System rekuperacji we wszystkich pomieszczeniach
Komin
Komin systemowy wraz z obróbką z blachy ponad dachem
Płyta kartonowo gipsowa / Fermacell (położenie bez malowania i szpachlowania) na powierzchni całego domu
Posadzki
Termoizolacja
Wełna skalna prasowana U=0,035 W/m²*K
Wełna fasadowa U=0,035 W/m²*K
Dodatkowa Termoizolacja
Wełna fasadowa rockwool U=0,035 W/m²*K.
Schody
Montaż
BASIC
269 900,00
zł/NETTO
Blacha
Stalowe
Płyta G-K
U=0,16
COMFORT
307 900,00
zł/NETTO
Blacha
Stalowe
Fermacell
U=0,14
PREMIUM
310 000,00
zł/NETTO
Dachówka
Granitowe
Fermacell
U=0,12
Dostarczamy nasze domy w promieniu do 100 km bez dodatkowych opłat. Jeśli jesteś poza tym zasięgiem, dostosujemy cenę dostawy do Twojej lokalizacji. Montaż oraz zmiany w projekcie wymagają konsultacji, napisz do nas, przygotujemy dla Ciebie spersonalizowaną wycenę. Nasza oferta jest elastyczna, dostosowana do Twoich potrzeb!
Skontaktuj się
z nami!
Masz pytania odnośnie naszych projektów? Dalej masz wątpliwości?
Zadzwoń albo napisz do nas maila!
+48 501 063 489
+48 451 666 138
+48 605 146 011
domihaus@domihaus.com
