
Projekt Indywidualny DH47
Dom modułowy DH47
Projekt DH47 to nowoczesny i funkcjonalny dom jednorodzinny, zaprojektowany z myślą o komforcie i ergonomii użytkowania. Idealny zarówno dla małych rodzin, jak i osób ceniących sobie minimalistyczny styl życia. Charakterystyczny układ wnętrz i kompaktowy design sprawiają, że dom wpasowuje się zarówno w miejskie, jak i podmiejskie otoczenie.
Duże przeszklenia w części dziennej nie tylko wpuszczają naturalne światło, ale także optycznie powiększają przestrzeń. Komfort codziennego życia zapewniają przemyślane układy pomieszczeń oraz łatwy dostęp do wszystkich stref domu.
Możliwość dowolnej aranżacji dodatkowego pokoju pozwala dostosować wnętrze do zmieniających się wymagań rodziny. Projekt sprawdzi się zarówno jako dom całoroczny, jak i letniskowy – jego uniwersalny charakter i kompaktowe wymiary czynią go odpowiednim rozwiązaniem nawet na niewielkich działkach.
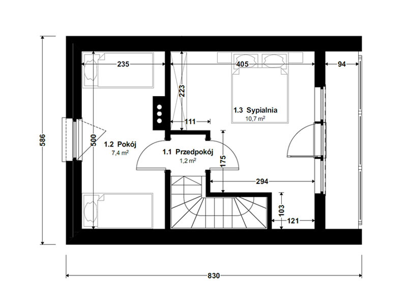
Specyfikacja:
Długość: 8,30 m
Szerokość: 5,86 m
Powierzchnia użytkowa: 51,20 m²
Powierzchnia zabudowy: 48,64 m²
Wysokość: 7,04 m
Powierzchnia netto (podłogi): 60,00 m²
Konstrukcja:
Ściany
- Płyta Fermacell 12,5mm / płyta G-K 12,5mm / boazeria
- Ruszt instalacyjny 40x60mm ocieplony wełną skalną Rockwool 50mm
- Folia paroizolacyjna
- Konstrukcja 45x145mm, ocieplenie wełną skalną Rockwool 140(145)mm
- Płyta Fermacell 12,5mm
- Wełna fasadowa 100mm/ 150mm
- Membrana fasadowa wiatroizolacyjna
- Elewacja lamelkowa / blacha na rąbek / boazeria / tynk

Podłoga
- Zagęszczone kruszywo bazaltowe
- Zagęszczony piasek
- Polistyren ekstrudowany XPS 2x50mm
- Płyta żelbetowa 200mm
- Hydroizolacja podwaliny
- Pozioma izolacja z folii PE
- Płyty styropianowe 150mm
- Folia pod ogrzewanie podłogowe
- Wylewka, ogrzewanie podłogowe (ok. 70mm)
- Panele podłogowe

Dach
- Płyta Fermacell 12,5mm / płyta G-K 12,5mm / boazeria
- Ruszt instalacyjny 40x60mm ocieplony wełną skalną Rockwool 50mm
- Folia paroizolacyjna
- Krokwie 40x195mm, ocieplenie wełną skalną Rockwool 180mm
- Membrana dachowa
- Łaty i kontrłaty impregnowane
- Pokrycie dachowe blacha na rąbek/dachówka

Opcje wykończenia
Realizacja w różnych opcjach wykończenia
Dostosuj swój dom do własnych potrzeb
Projekt budowlany
Standardowy projekt budowlany bez adaptacji
Zmiany w projekcie
Konstrukcja
Pokrycie dachu z rynnami
Elewacja lamel - Impregnowana ciśnieniowo w kolorze brązowym
Parapety zewnętrzne
Stolarka okienna i drzwiowa
Okna dachowe
Instalacja elektryczna
Instalacja wodno kanalizacyjna
Instalacja C.O.
Klimatyzacja
Wentylacja – naturalna – grawitacyjna
Rekuperacja
System rekuperacji we wszystkich pomieszczeniach
Komin
Komin systemowy wraz z obróbką z blachy ponad dachem
Płyta kartonowo gipsowa / Fermacell (położenie bez malowania i szpachlowania) na powierzchni całego domu
Posadzki
Termoizolacja
Wełna skalna prasowana U=0,035 W/m²*K
Wełna fasadowa U=0,035 W/m²*K
Dodatkowa Termoizolacja
Wełna fasadowa rockwool U=0,035 W/m²*K.
Schody
Montaż
BASIC
318 000,00
zł/NETTO
Blacha
Stalowe
Płyta G-K
U=0,16
COMFORT
391 000,00
zł/NETTO
Blacha
Stalowe
Fermacell
U=0,14
PREMIUM
402 500,00
zł/NETTO
Dachówka
Granitowe
Fermacell
U=0,12
Dostarczamy nasze domy w promieniu do 100 km bez dodatkowych opłat. Jeśli jesteś poza tym zasięgiem, dostosujemy cenę dostawy do Twojej lokalizacji. Montaż oraz zmiany w projekcie wymagają konsultacji, napisz do nas, przygotujemy dla Ciebie spersonalizowaną wycenę. Nasza oferta jest elastyczna, dostosowana do Twoich potrzeb!
Skontaktuj się
z nami!
Masz pytania odnośnie naszych projektów? Dalej masz wątpliwości?
Zadzwoń albo napisz do nas maila!
+48 501 063 489
+48 451 666 138
+48 605 146 011
domihaus@domihaus.com
