
Projekt > 70 m2
Dom modułowy DH174
Nowoczesny dom całoroczny o prostej, minimalistycznej formie z dachem dwuspadowym. Połączenie naturalnego łupka i drewna na elewacji nadaje bryle elegancki, ponadczasowy wygląd i harmonijnie wpisuje ją w otoczenie.
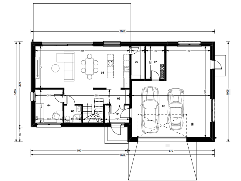
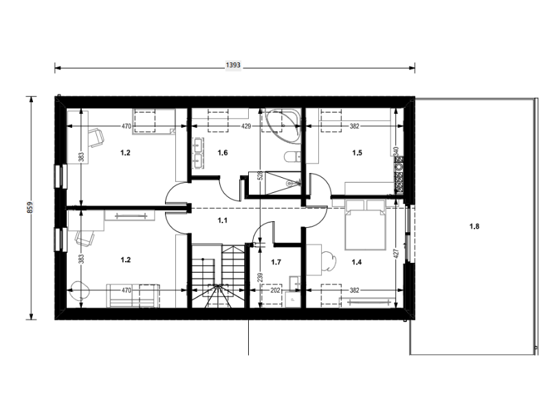
Układ wnętrza został zaplanowany z myślą o wygodzie i praktycznym użytkowaniu. Otwarta strefa dzienna z dużymi przeszkleniami zapewnia dużo światła i sprzyja codziennemu funkcjonowaniu. Na piętrze zaprojektowano część prywatną z sypialniami i łazienką.
Integralną częścią budynku jest garaż dwustanowiskowy, nad którym znajduje się przestronny taras – idealne miejsce do odpoczynku.
Starannie dobrane materiały oraz przemyślane rozwiązania sprawiają, że dom łączy nowoczesną estetykę z funkcjonalnością, tworząc wygodną przestrzeń do życia przez cały rok.
Specyfikacja:
Długość: 18,69 m
Szerokość: 10,09 m
Powierzchnia użytkowa: 162,97 m²
Powierzchnia zabudowy: 173,59 m²
Wysokość: 8,68 m
Powierzchnia netto (podłogi):235,71 m²
Konstrukcja:
Ściany
- Płyta Fermacell 12,5mm / płyta G-K 12,5mm / boazeria
- Ruszt instalacyjny 40x60mm ocieplony wełną skalną Rockwool 50mm
- Folia paroizolacyjna
- Konstrukcja 45x145mm, ocieplenie wełną skalną Rockwool 140(145)mm
- Płyta Fermacell 12,5mm
- Wełna fasadowa 100mm/ 150mm
- Membrana fasadowa wiatroizolacyjna
- Elewacja lamelkowa / blacha na rąbek / boazeria / tynk

Podłoga
- Zagęszczone kruszywo bazaltowe
- Zagęszczony piasek
- Polistyren ekstrudowany XPS 2x50mm
- Płyta żelbetowa 200mm
- Hydroizolacja podwaliny
- Pozioma izolacja z folii PE
- Płyty styropianowe 150mm
- Folia pod ogrzewanie podłogowe
- Wylewka, ogrzewanie podłogowe (ok. 70mm)
- Panele podłogowe

Dach
- Płyta Fermacell 12,5mm / płyta G-K 12,5mm / boazeria
- Ruszt instalacyjny 40x60mm ocieplony wełną skalną Rockwool 50mm
- Folia paroizolacyjna
- Krokwie 40x195mm, ocieplenie wełną skalną Rockwool 180mm
- Membrana dachowa
- Łaty i kontrłaty impregnowane
- Pokrycie dachowe blacha na rąbek/dachówka

Opcje wykończenia
Realizacja w różnych opcjach wykończenia
Dostosuj swój dom do własnych potrzeb
Projekt budowlany
Standardowy projekt budowlany bez adaptacji
Zmiany w projekcie
Konstrukcja
Pokrycie dachu z rynnami
Elewacja łupek
Parapety zewnętrzne
Stolarka okienna i drzwiowa
Instalacja elektryczna
Instalacja wodno kanalizacyjna
Instalacja C.O.
Klimatyzacja
Wentylacja – naturalna – grawitacyjna
Rekuperacja
System rekuperacji we wszystkich pomieszczeniach
Komin
Komin systemowy wraz z obróbką z blachy ponad dachem
Płyta kartonowo gipsowa / Fermacell (położenie bez malowania i szpachlowania) na powierzchni całego domu
Posadzki
Termoizolacja
Wełna skalna prasowana U=0,035 W/m²*K
Wełna fasadowa U=0,035 W/m²*K
Dodatkowa Termoizolacja
Wełna fasadowa rockwool U=0,035 W/m²*K.
Montaż + garaż
BASIC
1 300 000,00
zł/NETTO
Łupek
Stalowe
Płyta G-K
U=0,16
(24cm)
COMFORT
1 370 000,00
zł/NETTO
Łupek
Stalowe
Fermacell
U=0,14
(29cm)
PREMIUM
1 398 000,00
zł/NETTO
Łupek
Granitowe
Fermacell
U=0,12
(34cm)
Dostarczamy nasze domy w promieniu do 100 km bez dodatkowych opłat. Jeśli jesteś poza tym zasięgiem, dostosujemy cenę dostawy do Twojej lokalizacji. Montaż oraz zmiany w projekcie wymagają konsultacji, napisz do nas, przygotujemy dla Ciebie spersonalizowaną wycenę. Nasza oferta jest elastyczna, dostosowana do Twoich potrzeb!
Skontaktuj się
z nami!
Masz pytania odnośnie naszych projektów? Dalej masz wątpliwości?
Zadzwoń albo napisz do nas maila!
+48 501 063 489
+48 451 666 138
+48 605 146 011
domihaus@domihaus.com
