
Projekt Domu Parterowego
Dom modułowy DH115
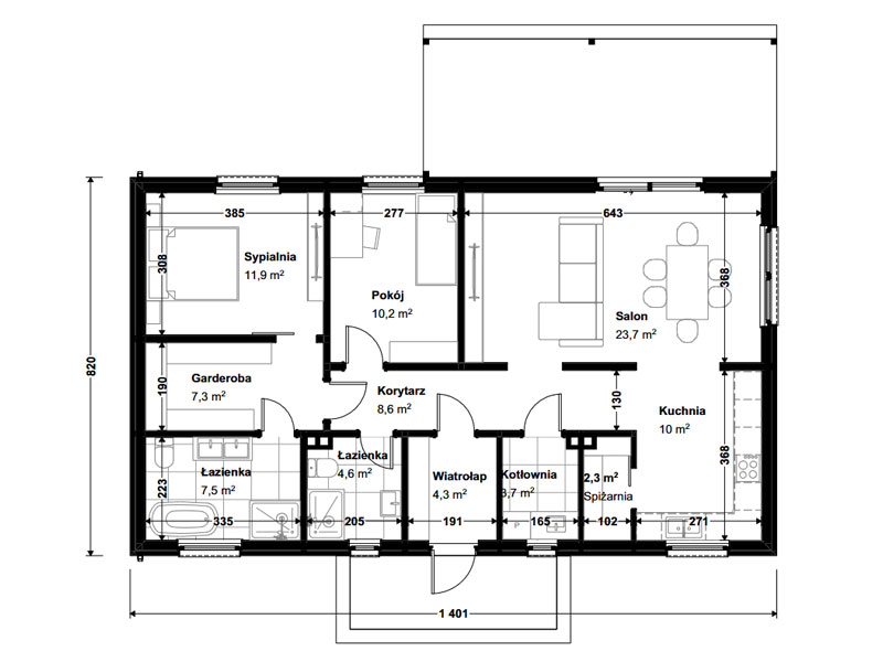
Projekt DH115 to propozycja dla osób poszukujących harmonii między funkcjonalnością, estetyką i nowoczesnymi rozwiązaniami. Z powierzchnią użytkową 93,90 m², dom oferuje doskonałe zagospodarowanie przestrzeni na jednym poziomie, zapewniając wygodę życia. Przestronny salon, komfortowa sypialnia, pokój dla gości lub dzieci oraz dodatkowe udogodnienia, takie jak garderoba i spiżarnia, czynią ten projekt idealnym dla nowoczesnej rodziny.
Parterowy dom DH115 został zaprojektowany z myślą o trwałości i energooszczędności . Konstrukcja z drewna klasy C24, szkieletowe ściany z zaawansowaną izolacją oraz ekologiczne materiały wykończeniowe zapewniają niskie koszty utrzymania i komfort cieplny przez cały rok. To nie tylko dom, ale również inwestycja w zrównoważony rozwój i lepszą przyszłość dla Twojej rodziny.
Dom został zaprojektowany z dbałością o każdy detal. Salon o powierzchni 23,66 m² to serce domu, idealne na rodzinne spotkania, natomiast kuchnia z spiżarnią oraz dwie łazienki zwiększają funkcjonalność przestrzeni. Garderoba (7,32 m²) oraz kotłownia (3,68 m²) dopełniają całości, tworząc praktyczne i wygodne miejsce do życia. DH115 to wybór dla tych, którzy oczekują więcej od swojego domu – stylu, jakości i komfortu w jednym.
Specyfikacja:
Długość: 14,00 m
Szerokość: 8,20 m
Powierzchnia użytkowa: 93,90 m²
Powierzchnia zabudowy: 114,80 m²
Wysokość: 5,96 m
Powierzchnia netto (podłogi): 93,90 m²
Konstrukcja:
Ściany
- Płyta Fermacell 12,5mm / płyta G-K 12,5mm / boazeria
- Ruszt instalacyjny 40x60mm ocieplony wełną skalną Rockwool 50mm
- Folia paroizolacyjna
- Konstrukcja 45x145mm, ocieplenie wełną skalną Rockwool 140(145)mm
- Płyta Fermacell 12,5mm
- Wełna fasadowa 100mm/ 150mm
- Membrana fasadowa wiatroizolacyjna
- Elewacja lamelkowa / blacha na rąbek / boazeria / tynk

Podłoga
- Zagęszczone kruszywo bazaltowe
- Zagęszczony piasek
- Polistyren ekstrudowany XPS 2x50mm
- Płyta żelbetowa 200mm
- Hydroizolacja podwaliny
- Pozioma izolacja z folii PE
- Płyty styropianowe 150mm
- Folia pod ogrzewanie podłogowe
- Wylewka, ogrzewanie podłogowe (ok. 70mm)
- Panele podłogowe

Dach
- Płyta Fermacell 12,5mm / płyta G-K 12,5mm / boazeria
- Ruszt instalacyjny 40x60mm ocieplony wełną skalną Rockwool 50mm
- Folia paroizolacyjna
- Krokwie 40x195mm, ocieplenie wełną skalną Rockwool 180mm
- Membrana dachowa
- Łaty i kontrłaty impregnowane
- Pokrycie dachowe blacha na rąbek/dachówka

Opcje wykończenia
Realizacja w różnych opcjach wykończenia
Dostosuj swój dom do własnych potrzeb
Projekt budowlany
Standardowy projekt budowlany bez adaptacji
Zmiany w projekcie
Konstrukcja
Pokrycie dachu z rynnami
Elewacja tynk silikatowo - silikonowy
Parapety zewnętrzne
Stolarka okienna i drzwiowa
Instalacja elektryczna
Instalacja wodno kanalizacyjna
Instalacja C.O.
Klimatyzacja
Wentylacja – naturalna – grawitacyjna
Rekuperacja
System rekuperacji we wszystkich pomieszczeniach
Komin
Komin systemowy wraz z obróbką z blachy ponad dachem
Płyta kartonowo gipsowa / Fermacell (położenie bez malowania i szpachlowania) na powierzchni całego domu
Posadzki
Termoizolacja
Wełna skalna prasowana U=0,035 W/m²*K
Wełna fasadowa U=0,035 W/m²*K
Dodatkowa Termoizolacja
Wełna fasadowa rockwool U=0,035 W/m²*K.
Montaż
BASIC
487 950,00
zł/NETTO
Blacha
Stalowe
Płyta G-K
U=0,16
(24cm)
COMFORT
539 650,00
zł/NETTO
Blacha
Stalowe
Fermacell
U=0,14
(29cm)
PREMIUM
561 600,00
zł/NETTO
Dachówka
Granitowe
Fermacell
U=0,12
(34cm)
Dostarczamy nasze domy w promieniu do 100 km bez dodatkowych opłat. Jeśli jesteś poza tym zasięgiem, dostosujemy cenę dostawy do Twojej lokalizacji. Montaż oraz zmiany w projekcie wymagają konsultacji, napisz do nas, przygotujemy dla Ciebie spersonalizowaną wycenę. Nasza oferta jest elastyczna, dostosowana do Twoich potrzeb!
Skontaktuj się
z nami!
Masz pytania odnośnie naszych projektów? Dalej masz wątpliwości?
Zadzwoń albo napisz do nas maila!
+48 501 063 489
+48 451 666 138
+48 605 146 011
domihaus@domihaus.com
