
Projekt CUBE
Dom modułowy CUBE 24
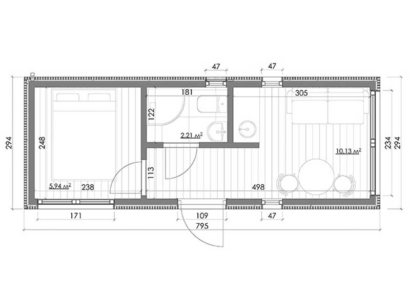
Zaletą domów CUBE są: szybki czas realizacji, niskie koszty budowy oraz możliwość dostosowania do indywidualnych potrzeb Klienta. Projekt nie wymaga pozwolenia na budowę i może pełnić rolę domku całorocznego. Dom modułowy CUBE24 o powierzchni użytkowej 17,81 m2 to doskonały wybór dla osób szukających niewielkiego domu, który z łatwością można zmieścić nawet na niewielkiej działce. Montaż całej konstrukcji zajmuje do dwóch dni.
Domy modułowe CUBE wykonane są z energooszczędnych materiałów, co pozwala obniżyć koszty eksploatacji, w tym koszy ogrzewania. Klient ma możliwość wyboru rodzaju stolarki okiennej (PCV lub aluminiowa), jej kolorystyki oraz rodzaju pokrycia dachowego. CUBE24 można dowolnie zagospodarować w środku. Konstrukcje mogą pełnić rolę biura, domku letniskowego, gabinetu, sklepiku, czy domku dla gości na wynajem w miejscowościach turystycznych.
Specyfikacja:
Długość – 7,95 m
Szerokość – 2,94 m
Powierzchnia użytkowa: 17,81 m2
Powierzchnia zabudowy: 23,34 m2
Wysokość – 2,70 m
Czas realizacji – 2 dni
Konstrukcja:
Ściany
- Szkielet z deski klejonej o przekroju 40x100mm
- Ocieplenie z niepalnej wełny skalnej ROCKWOOL
- Poszycie z płyty OSB3 o grubości 15mm
- Membrana wiatroizolacyjna
- Łaty impregnowane 16×70 pod elewację

Podłoga
- Płyta OSB3 o grubości 15mm
- Szkielet z desek klejonych 40x100mm (lub 145mm), impregnowanych
- Ocieplenie z niepalnej wełny skalnej ROCKWOOL
- Membrana wiatroizolacyjna
- Legary impregnowane 29x59mm
- Blacha ocynkowana

Dach
- Tworzywo EPDM na kleju
- Płyta OSB3 o grubości 15mm zagruntowana gruntem bitumicznym
- Szkieletz deski litej 45x145mm
- Ocieplenie z niepalnej wełny skalnej ROCKWOOL
- Membrana paroizolacyjna

Opcje wykończenia
Realizacja w różnych opcjach wykończenia
Dostosuj swój dom do własnych potrzeb
Konstrukcja
Ocieplenie ścian
Ocieplenie dachu
Pokrycie dachu
Rynna
Drzwi i okna
Opierzenia, obróbki blacharskie
Instalacja wodno kanalizacyjna
Instalacja elektryczna
Szafa elektryczna
Klimatyzator
Oświetlenie wewnątrz
Oświetlenie na zewnątrz
Gniazdka
Wykończenie łazienki
Panele podłogowe we wszystkich pomieszczeniach
Dodatkowe ocieplenie podłogi xps
Rama transportowa dodatkowo ocieplona i zabezpieczona przed szkodnikami
Drzwi wewnętrzne
Wykończenie kuchni
Ogrzewanie podłogowe
Przepływowy ogrzewacz wody
Lodówka
Płyta indukcyjna w kuchni
Impregnacja elewacji
Meble
Taras
BASIC
144 180,00
zł/NETTO
panel pcv, paroizolacja, konstrukcja ocieplenie 100mm, OSB, membrana, elewacja panele pcv
100 mm wełna skalna rockwool
150 mm wełna skalna rockwool
papa
plastikowa
pcv 2 szybowe (drzwi balkonowe)
toaleta, prysznic, umywalka, lustro, wentylator
2 m x 7,95 m
COMFORT
158 852,00
zł/NETTO
boazeria lub regips, paroizolacja, konstrukcja z ociepleniem, OSB3, membrana, elewacja z deski
100 mm wełna skalna rockwool
150 mm wełna skalna rockwool
epdm
metalowa
pcv 2 szybowe (okno przesuwne PSK)
toaleta, prysznic, umywalka, lustro, wentylator
Blat, szafki, zlew
2 m x 7,95 m
PREMIUM
213 850,00
zł/NETTO
boazeria lub regips, paroizolacja, konstrukcja z ociepleniem, OSB3, membrana, elewacja z lamelki
100 mm wełna skalna rockwool
150 mm wełna skalna rockwool
epdm
metalowa
pcv 2 szybowe (okno przesuwne PSK)
toaleta, prysznic, umywalka, lustro, wentylator, kafelki na podłodze i ścianach
Blat, szafki, zlew
salon: kanapa, stolik, szafka pod tv
sypialnia: łóżko, szafa
2 m x 7,95 m
Dostarczamy nasze domy w promieniu do 100 km bez dodatkowych opłat. Jeśli jesteś poza tym zasięgiem, dostosujemy cenę dostawy do Twojej lokalizacji. Montaż oraz zmiany w projekcie wymagają konsultacji, napisz do nas, przygotujemy dla Ciebie spersonalizowaną wycenę. Nasza oferta jest elastyczna, dostosowana do Twoich potrzeb!
Skontaktuj się
z nami!
Masz pytania odnośnie naszych projektów? Dalej masz wątpliwości?
Zadzwoń albo napisz do nas maila!
+48 501 063 489
+48 451 666 138
+48 605 146 011
domihaus@domihaus.com
