
Projekt Indywidualny DH47
Dom modułowy DH47-1 z Przedsionkiem
Projekt DH47-1 to nowoczesny i funkcjonalny dom jednorodzinny, stworzony z myślą o komforcie i ergonomii życia na niewielkiej przestrzeni. Dzięki przemyślanemu układowi i kompaktowym wymiarom doskonale sprawdza się zarówno jako całoroczny dom rodzinny, jak i wygodny domek letniskowy.
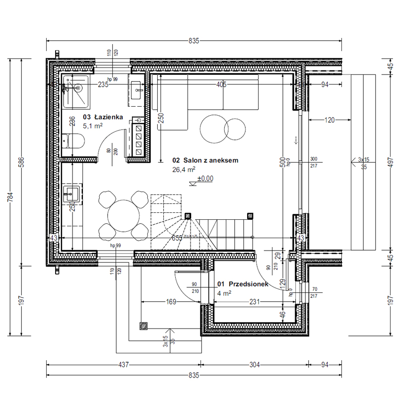
Na parterze (35,62 m²) znajduje się przestronny salon z aneksem kuchennym (26,44 m²), funkcjonalna łazienka (5,13 m²) oraz przedsionek (4,05 m²). Duże przeszklenia w części dziennej doświetlają wnętrze i wizualnie powiększają przestrzeń, sprzyjając kontaktowi z otoczeniem.
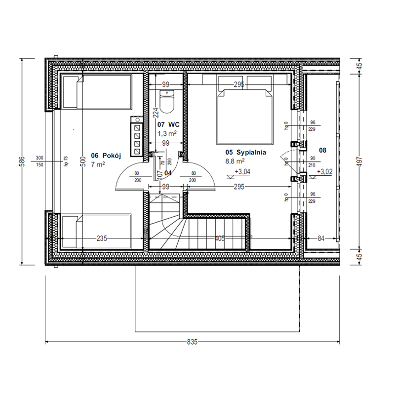
Uniwersalny charakter projektu DH47-1 umożliwia łatwą adaptację wnętrz – dodatkowy pokój może pełnić funkcję gabinetu, pokoju dziecka lub gościnnego. Dom idealnie wpisuje się w miejskie i podmiejskie działki, również te o ograniczonej powierzchni.
Specyfikacja:
Długość: 8,35 m
Szerokość: 5,86 m
Powierzchnia użytkowa: 51,20 m²
Powierzchnia zabudowy: 58,28 m²
Wysokość: 7,39 m
Powierzchnia netto (podłogi): 63,18 m²
Konstrukcja:
Ściany
- Płyta Fermacell 12,5mm / płyta G-K 12,5mm / boazeria
- Ruszt instalacyjny 40x60mm ocieplony wełną skalną Rockwool 50mm
- Folia paroizolacyjna
- Konstrukcja 45x145mm, ocieplenie wełną skalną Rockwool 140(145)mm
- Płyta Fermacell 12,5mm
- Wełna fasadowa 100mm/ 150mm
- Membrana fasadowa wiatroizolacyjna
- Elewacja lamelkowa / blacha na rąbek / boazeria / tynk

Podłoga
- Zagęszczone kruszywo bazaltowe
- Zagęszczony piasek
- Polistyren ekstrudowany XPS 2x50mm
- Płyta żelbetowa 200mm
- Hydroizolacja podwaliny
- Pozioma izolacja z folii PE
- Płyty styropianowe 150mm
- Folia pod ogrzewanie podłogowe
- Wylewka, ogrzewanie podłogowe (ok. 70mm)
- Panele podłogowe

Dach
- Płyta Fermacell 12,5mm / płyta G-K 12,5mm / boazeria
- Ruszt instalacyjny 40x60mm ocieplony wełną skalną Rockwool 50mm
- Folia paroizolacyjna
- Krokwie 40x195mm, ocieplenie wełną skalną Rockwool 180mm
- Membrana dachowa
- Łaty i kontrłaty impregnowane
- Pokrycie dachowe blacha na rąbek/dachówka

Opcje wykończenia
Realizacja w różnych opcjach wykończenia
Dostosuj swój dom do własnych potrzeb
Projekt budowlany
Standardowy projekt budowlany bez adaptacji
Zmiany w projekcie
Konstrukcja
Pokrycie dachu z rynnami
Elewacja lamel - Impregnowana ciśnieniowo w kolorze brązowym
Parapety zewnętrzne
Stolarka okienna i drzwiowa
Okna dachowe
Instalacja elektryczna
Instalacja wodno kanalizacyjna
Instalacja C.O.
Klimatyzacja
Wentylacja – naturalna – grawitacyjna
Rekuperacja
System rekuperacji we wszystkich pomieszczeniach
Komin
Komin systemowy wraz z obróbką z blachy ponad dachem
Płyta kartonowo gipsowa / Fermacell (położenie bez malowania i szpachlowania) na powierzchni całego domu
Posadzki
Termoizolacja
Wełna skalna prasowana U=0,035 W/m²*K
Wełna fasadowa U=0,035 W/m²*K
Dodatkowa Termoizolacja
Wełna fasadowa rockwool U=0,035 W/m²*K.
Schody
Montaż
BASIC
346 000,00
zł/NETTO
Blacha
Stalowe
Płyta G-K
U=0,16
COMFORT
419 000,00
zł/NETTO
Blacha
Stalowe
Fermacell
U=0,14
PREMIUM
430 500,00
zł/NETTO
Dachówka
Granitowe
Fermacell
U=0,12
Dostarczamy nasze domy w promieniu do 100 km bez dodatkowych opłat. Jeśli jesteś poza tym zasięgiem, dostosujemy cenę dostawy do Twojej lokalizacji. Montaż oraz zmiany w projekcie wymagają konsultacji, napisz do nas, przygotujemy dla Ciebie spersonalizowaną wycenę. Nasza oferta jest elastyczna, dostosowana do Twoich potrzeb!
Skontaktuj się
z nami!
Masz pytania odnośnie naszych projektów? Dalej masz wątpliwości?
Zadzwoń albo napisz do nas maila!
+48 501 063 489
+48 451 666 138
+48 605 146 011
domihaus@domihaus.com
