
Projekt Domu Parterowego z Garażem
Dom modułowy DH127-1 z Garażem Dwustanowiskowym
Projekt DH127-1 z garażem dwustanowiskowym to idealna propozycja dla osób poszukujących harmonii pomiędzy funkcjonalnością, nowoczesnym stylem i komfortem użytkowania. Z powierzchnią użytkową 151,38 m², dom zapewnia optymalne rozplanowanie przestrzeni mieszkalnej na jednym poziomie – co gwarantuje wygodę codziennego życia.
Parterowy dom DH127-1 został stworzony z myślą o trwałości i energooszczędności. Budowa z drewna klasy C24, szkieletowe ściany z nowoczesną izolacją i ekologiczne materiały wykończeniowe gwarantują niskie koszty eksploatacji oraz komfort cieplny przez cały rok. To nie tylko miejsce do życia, ale także inwestycja w zrównoważony rozwój i lepszą przyszłość dla Twojej rodziny.
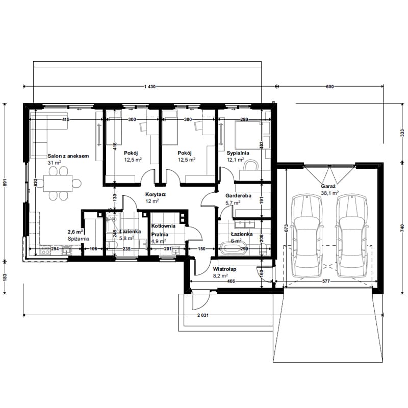
Centralnym punktem domu jest przestronny salon z aneksem kuchennym (31,01 m²), który zachęca do wspólnych spotkań i integracji rodziny. Dwie ustawne sypialnie (po 12,5 m²) oraz osobna sypialnia główna (12,05 m²) z oddzielną garderobą (5,71 m²) dają poczucie prywatności i komfortu. Projekt oferuje również dwie łazienki (5,98 m² i 5,77 m²) oraz osobną pralnię z kotłownią (4,93 m²). DH127-1 to propozycja dla tych, którzy pragną więcej od swojego domu – stylu, wysokiej jakości i komfortu w jednym.
Specyfikacja:
Długość: 20,31 m
Szerokość: 10,73 m
Powierzchnia użytkowa: 151,38 m²
Powierzchnia zabudowy: 181,60 m²
Wysokość: 6,16 m
Powierzchnia netto (podłogi): 151,38 m²
Konstrukcja:
Ściany
- Płyta Fermacell 12,5mm / płyta G-K 12,5mm / boazeria
- Ruszt instalacyjny 40x60mm ocieplony wełną skalną Rockwool 50mm
- Folia paroizolacyjna
- Konstrukcja 45x145mm, ocieplenie wełną skalną Rockwool 140(145)mm
- Płyta Fermacell 12,5mm
- Wełna fasadowa 100mm/ 150mm
- Membrana fasadowa wiatroizolacyjna
- Elewacja lamelkowa / blacha na rąbek / boazeria / tynk

Podłoga
- Zagęszczone kruszywo bazaltowe
- Zagęszczony piasek
- Polistyren ekstrudowany XPS 2x50mm
- Płyta żelbetowa 200mm
- Hydroizolacja podwaliny
- Pozioma izolacja z folii PE
- Płyty styropianowe 150mm
- Folia pod ogrzewanie podłogowe
- Wylewka, ogrzewanie podłogowe (ok. 70mm)
- Panele podłogowe

Dach
- Płyta Fermacell 12,5mm / płyta G-K 12,5mm / boazeria
- Ruszt instalacyjny 40x60mm ocieplony wełną skalną Rockwool 50mm
- Folia paroizolacyjna
- Krokwie 40x195mm, ocieplenie wełną skalną Rockwool 180mm
- Płyta Fermacell 12,5mm
- Łaty i kontrłaty impregnowane
- Pokrycie dachowe blacha na rąbek/dachówka

Opcje wykończenia
Realizacja w różnych opcjach wykończenia
Dostosuj swój dom do własnych potrzeb
Projekt budowlany
Standardowy projekt budowlany bez adaptacji
Zmiany w projekcie
Konstrukcja
Pokrycie dachu z rynnami
Elewacja tynk silikatowo - silikonowy
Parapety zewnętrzne
Stolarka okienna i drzwiowa
Instalacja elektryczna
Instalacja wodno kanalizacyjna
Instalacja C.O.
Klimatyzacja
Wentylacja – naturalna – grawitacyjna
Rekuperacja
System rekuperacji we wszystkich pomieszczeniach
Komin
Komin systemowy wraz z obróbką z blachy ponad dachem
Płyta kartonowo gipsowa / Fermacell (położenie bez malowania i szpachlowania) na powierzchni całego domu
Posadzki
Termoizolacja
Wełna skalna prasowana U=0,035 W/m²*K
Wełna fasadowa U=0,035 W/m²*K
Dodatkowa Termoizolacja
Wełna fasadowa rockwool U=0,035 W/m²*K.
Montaż + garaż
BASIC
722 000,00
zł/NETTO
Blacha
Stalowe
Płyta G-K
U=0,16
COMFORT
778 000,00
zł/NETTO
Blacha
Stalowe
Fermacell
U=0,14
PREMIUM
809 900,00
zł/NETTO
Dachówka
Granitowe
Fermacell
U=0,12
Dostarczamy nasze domy w promieniu do 100 km bez dodatkowych opłat. Jeśli jesteś poza tym zasięgiem, dostosujemy cenę dostawy do Twojej lokalizacji. Montaż oraz zmiany w projekcie wymagają konsultacji, napisz do nas, przygotujemy dla Ciebie spersonalizowaną wycenę. Nasza oferta jest elastyczna, dostosowana do Twoich potrzeb!
Skontaktuj się
z nami!
Masz pytania odnośnie naszych projektów? Dalej masz wątpliwości?
Zadzwoń albo napisz do nas maila!
+48 501 063 489
+48 451 666 138
+48 605 146 011
domihaus@domihaus.com
